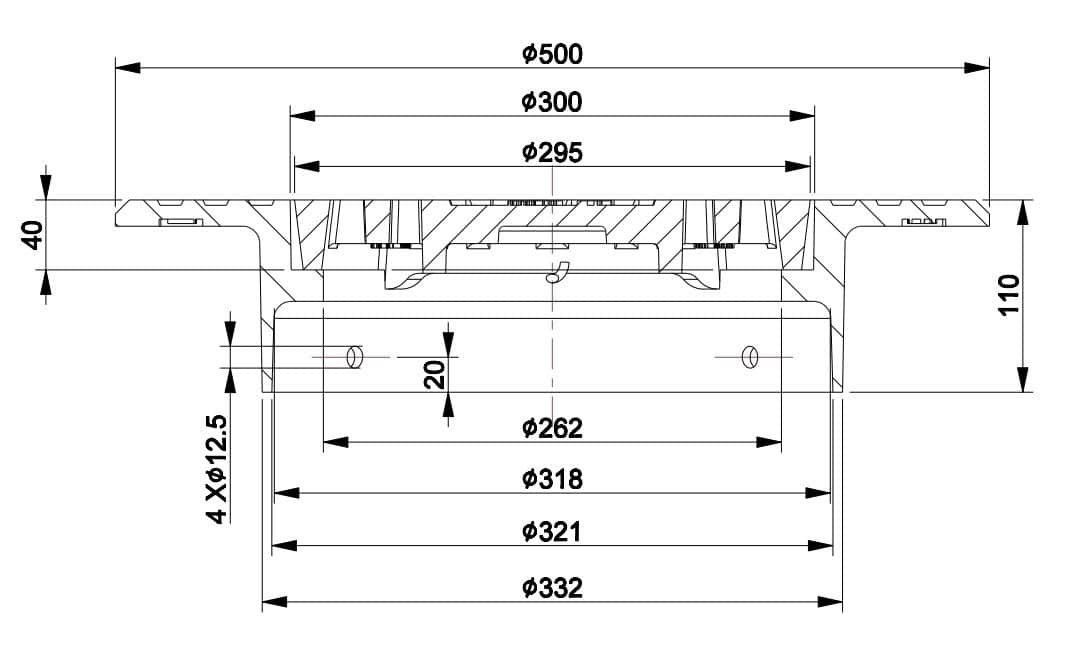
Takaisin tuotelistaukseen Kaivonkannet 315 kehys ja sadevesikansi 315-sarjan kehys 3366040-N ja lukkiutumaton sadevesikansi 3366042-N Tuotetiedot: Tuote Koodi: 3366040/2-N Takuu: 2 Vuotta Tuote kategoria: ASTV Markkina-alue: Latvia, Norja, Ruotsi, Suomi, Viro Tuote tyyppi: Setti Lukitusmekanismi: ———— EN lujuus luokka: D400 Paino: 32 kg Leveys: ———— mm Maksimi korkeus: 110 mm Seating depth: 40 mm Pituus: ———— mm Frame opening: 262 mm Pipe fit outer diameter: ———— mm Fit together: ———— Product set: ———— Material marks: Harmaavalurauta EN-GJL-200 Ota yhteyttä