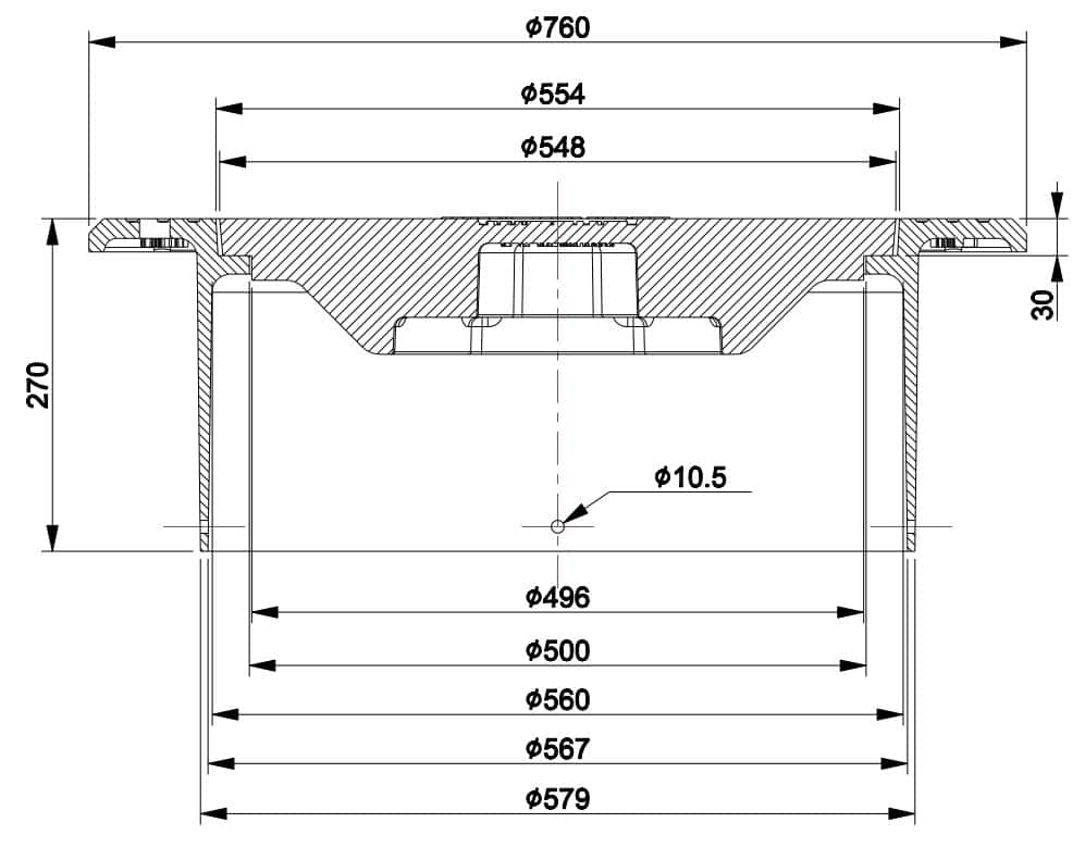
Takaisin tuotelistaukseen Kaivonkannet 550/30 pyöreä kelluva kehys h=270 ja sadevesikansi 550/30 D400 pyöreä kelluva kehys h=270 mm ja sadevesikansi. Tuotetiedot: Tuote Koodi: 3366025/75-N Takuu: 2 Vuotta Tuote kategoria: Kaukolämpö, Normaali Markkina-alue: Latvia, Norja, Ruotsi, Suomi Tuote tyyppi: Setti Lukitusmekanismi: ———— EN lujuus luokka: D400 Paino: 114 kg Leveys: ———— mm Maksimi korkeus: 270 mm Seating depth: 30 mm Pituus: ———— mm Frame opening: 500 mm Pipe fit outer diameter: ———— mm Fit together: ———— Product set: ———— Material marks: Harmaavalurauta EN-GJL-200 Ota yhteyttä