Tootevalik
Kaevuluuk
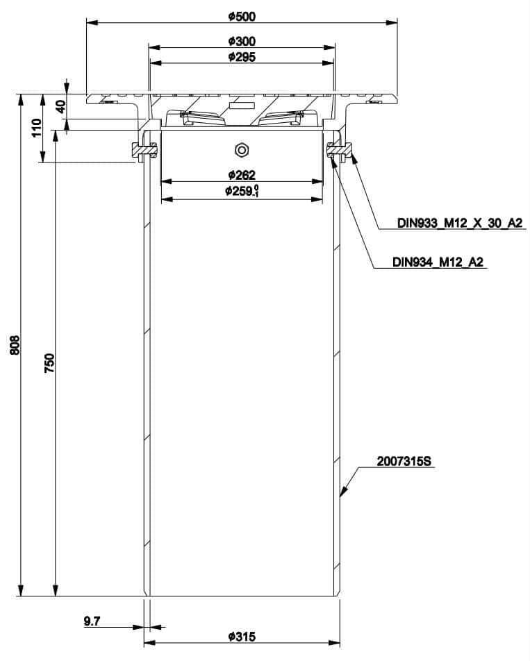
315 ASTV SN2 teleskoobikomplekt umbluugiga
315-seeria ASTV teleskoobikomplekt 2003178C koosneb ujuvast ümmargusest 3366040/1-N kaevuluugikomplektist, DN315 x 9,7mm x 0,75m SN2 teleskoobi torust ning M12 poldidest ja mutritest. Komplekt on sobiv Põhjamaade tingimustesse, vastab standardile EN 124-2:2015. Raam ja umbluuk on valmistatud hallmalmist EN-GJL-200 ja klassifitseeritub koormusklassi D400 alla, toru on PE-st ning poldid ja mutrid A2 roostevabast terasest.
Luugi saab avada magnettõstja CW1600 abil.
Tüüpilised kasutusalad on avalikud teed, tänavad ja parklad.
Vastab Tallinna Vesi nõuetele.

