Product range
Manhole cover
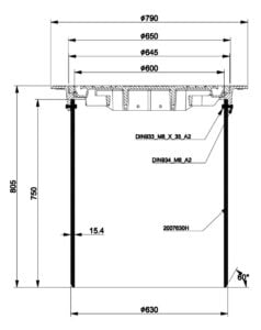
630 Normal telescope set 75 cm with round frame and lockable blind cover
630-series Telescope set 2006308C-N consists of a floating, round frame 3366126-N, lockable round blind cover 3366127-N and a 630/750 mm telescope pipe. The set is designed for Nordic conditions, in accordance with standard EN 124-2:2015, frame and blind cover are manufactured from ductile iron EN-GJS-500/7 and classified under Load Class D400.
Cover can be opened using opening tool 2004001.
Typical applications are public roads, inner streets, car parks.


