Product range
Manhole cover
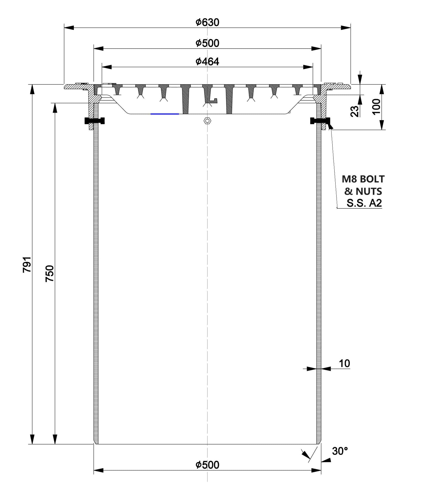
500 Telescope Set 75 cm with round frame and lockable grating
500-series Telescope set 2005108G-N consists of a floating, round frame 3366070-N, round grating 3366072-N and a 500/750 mm telescope pipe. The set is designed for Nordic conditions, in accordance with standard EN 124-2:2015, frame and blind cover are manufactured from ductile iron EN-GJS-500/7 and classified under Load Class D400.
Grating can be opened using a crow bar.
Typical applications are public roads, inners streets, car parks.


