Back to product listing
Telescope set


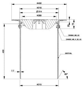
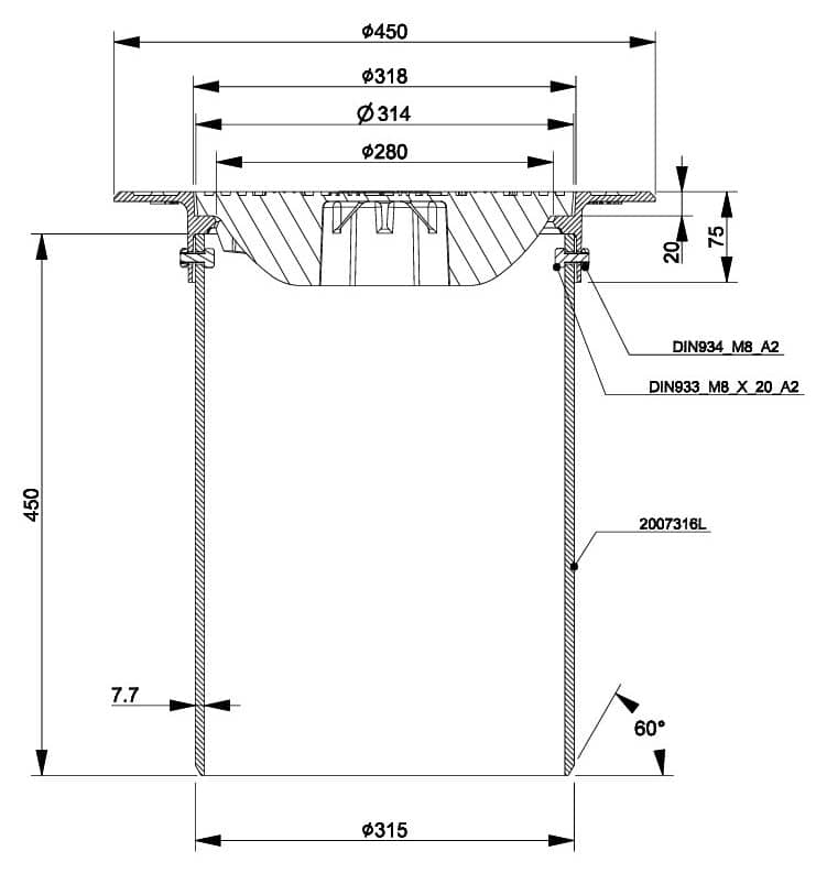
315 Telescope set 50 cm Optimized lockable frame and blind cover
315 Telescope set 50 cm Optimized lockable frame 3366131-N and blind cover 3366132-N


315 Telescope set 50 cm Optimized lockable frame 3366131-N and blind cover 3366132-N