Product range
Manhole cover
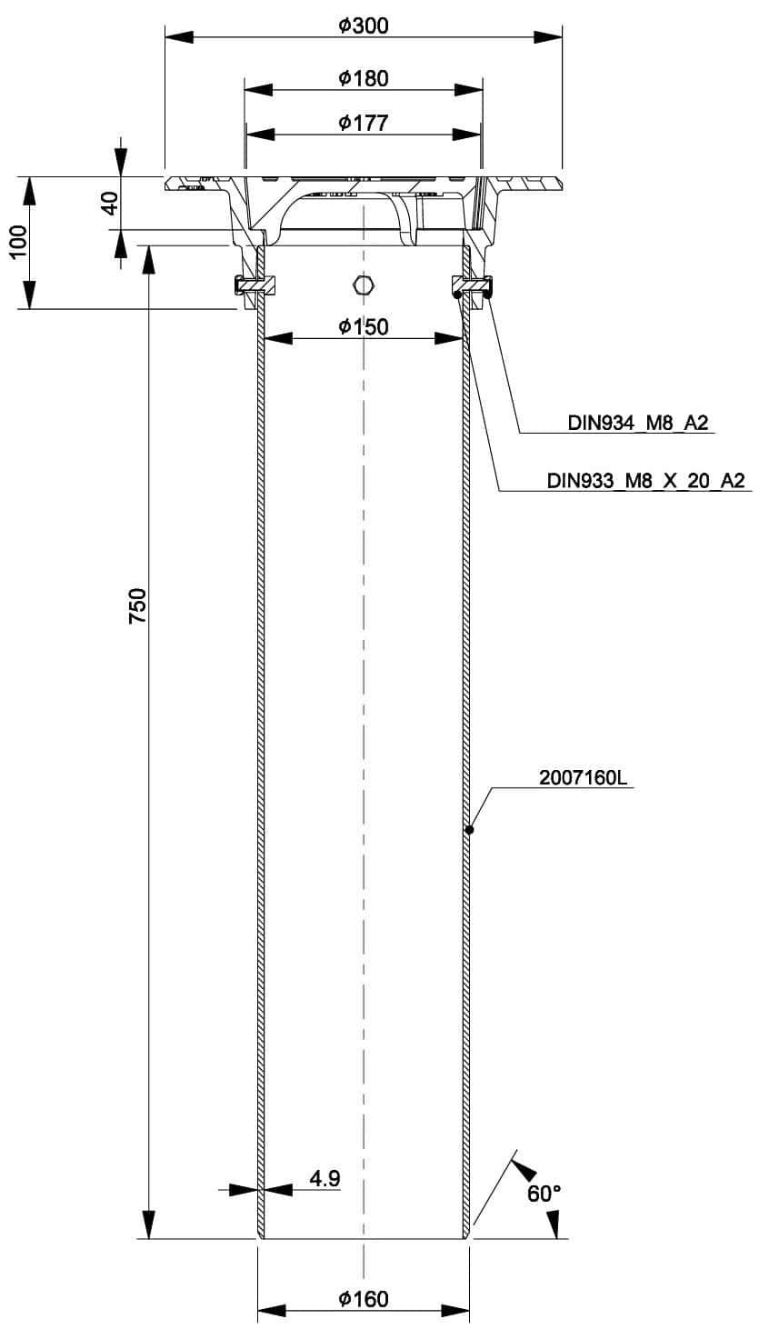
160/200 Telescope set 80 cm frame and blind cover
160/200-series Telescope set 2001608C-N consists of a floating, round frame 3366051-N, round blind cover 3366052-N and a 160/750 mm telescope pipe. The set is designed for Nordic conditions, in accordance with standard EN 124-2:2015, frame and blind cover are manufactured from ductile iron EN-GJS-500/7 and classified under Load Class D400.
Cover can be opened using a magnetic lifter CW1600.
Typical applications are public roads, inner streets, car parks.


