Tootevalik
Kaevuluuk
500 ASTV SN2 teleskoobikomplekt umbluugiga
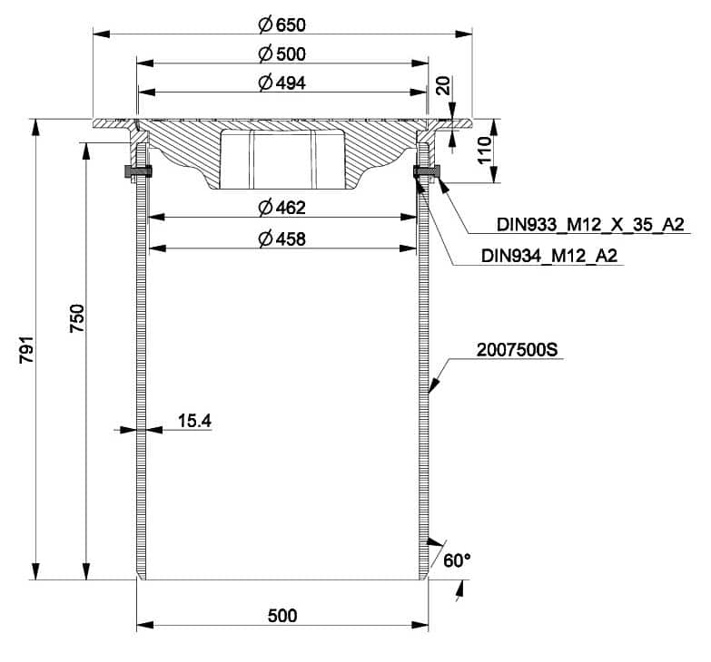
500-seeria ASTV teleskoobikomplekt 2005068C koosneb ujuvast ümmargusest 3366031/2-N kaevuluugikomplektist, DN500 x 15,3mm x 0,75m SN2 teleskooptorust ning M12 poldidest ja mutritest. Komplekt on sobiv Põhjamaade tingimustesse, vastavab standardile EN 124-2:2015. Raam ja umbluuk on valmistatud hallmalmist EN-GJL-200 ja klassifitseeritub koormusklassi D400 alla, toru on PE-st ning poldid ja mutrid A2 roostevabast terasest.
Luugi saab avada magnettõstja CW1600 või avamisvahendi 2004001 abil.
Tüüpilised kasutusalad on avalikud teed, tänavad ja parklad.


