Tootevalik
Kaevuluuk
500 Normal teleskoobikomplekt SN2 koos restluugiga
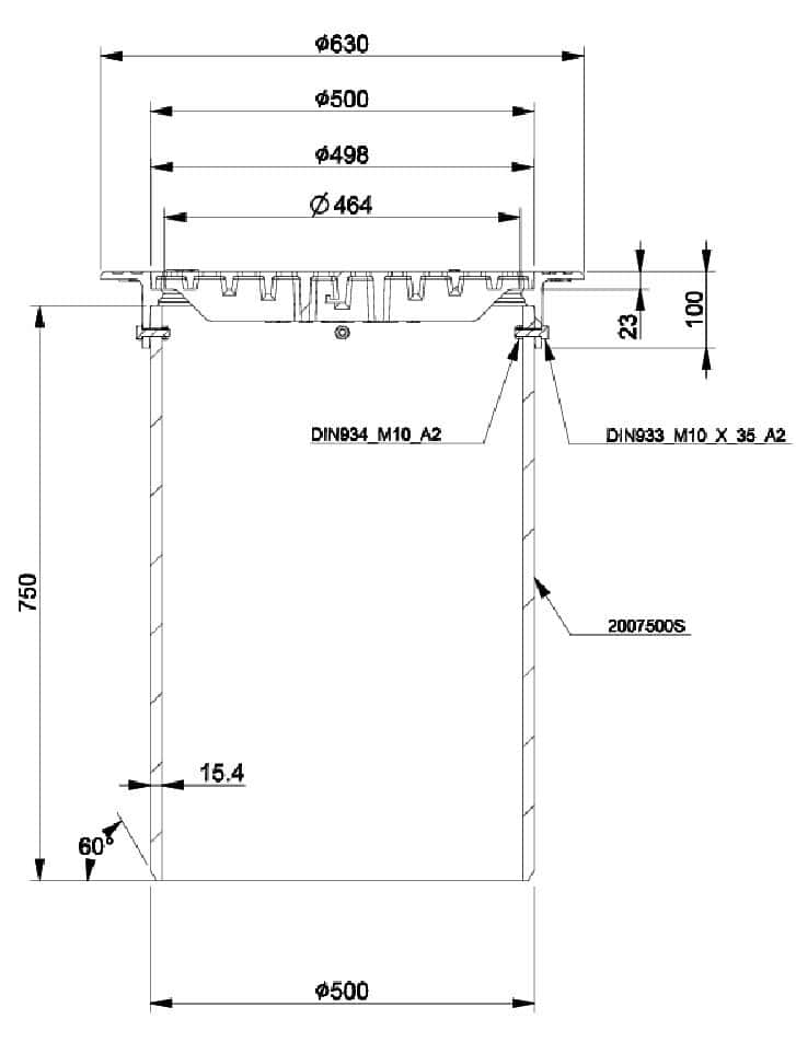
500-seeria Normal teleskoobikomplekt 2005008G koosneb ujuvast, ümmargusest kaevupäise 3366070/2-N komplektist, DN500 x 15,3mm x 0,75m SN2 teleskooptorust ning M10 poldidest ja mutritest. Komplekt on sobiv Põhjamaade tingimustesse, vastavab standardile EN 124-2:2015. Raam ja restluuk on valmistatud keragrafiitmalmist EN-GJS-500/7 ja klassifitseerub koormusklassi D400 alla, toru on PE-st ning poldid ja mutrid A2 roostevabast terasest.
Restluugi saab avada kangi abil.
Tüüpilised kasutusalad on avalikud teed, siseteed, parklad.
Spetsifikatsioonid:
Tootekood:
2005008G
Garantii:
2
Aastat
Tootekategooria:
Normal
Riik:
Eesti
TOOTETÜÜP:
Kmpl
LUKUSTUSMEHHANISM:
Vedrulukusti
EN Koormusklass
D400
Materjali mark:
Malm ja PE teleskoobi toru
mõõtmised:
MASS:
56
kg
MAX. KÕRGUS:
795
mm
SÜGAVUS:
23
mm
MAX. AVA:
464
mm
Kuidas avada kangiga lukustitega luuki
Selles videos näidatakse, kuidas avada kangiga lukustitega kaevuluuki. Näidistooteks on 315-seeria kaevuluuk, kuid sama meetod kehtib ka kõigi teiste 315- ja 500- seeria lukustatavate kaevuluukide kohta.
