Tootevalik
Kaevuluuk
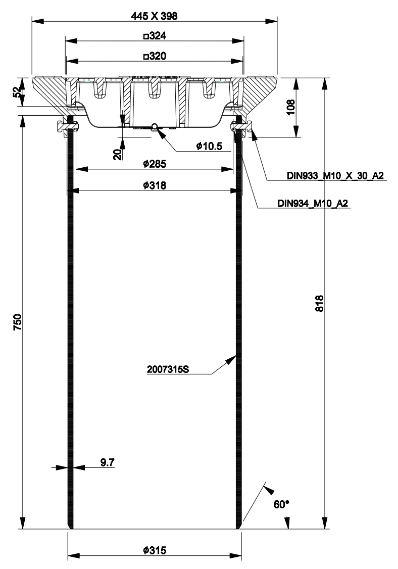
315 Normal teleskoobikomplekt SN2 nelikantraami ja -restluugiga
315-seeria Normal teleskoobikomplekt 2003147G koosneb 300×300 neljakandilisest ujuvraami ja neljakandilise restluugi komplektist 3366195/196-N, DN315 x 9,7mm x 0,75m SN2 teleskooptorust ning M10 poldidest ja mutritest. Komplekt on sobiv Põhjamaade tingimustesse, vastab standardile EN 124-2:2015. Raam ja restluuk on valmistatud keragrafiitmalmist EN-GJS-500/7 ja klassifitseeritud koormusklassi D400 alla, toru on PE-st ning poldid ja mutrid A2 roostevabast terasest.
Restluuki saab avada magnettõstja CW1600 abil.
Asümmeetrilise raami tõttu toimub paigaldamine mittekandva osaga vastu äärekivi.
Tüüpilised kasutusalad on avalikud teed, siseteed, parklad.

