Tagasi tootenimekirja juurde
Teleskoobi kmpl


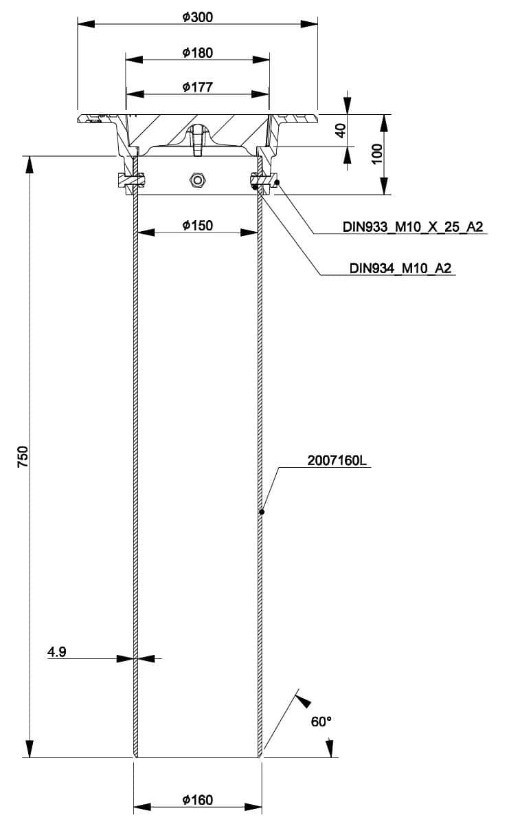
160 teleskoobi SN2 75cm komplekt Normal restluugiga
160-seeria 0,75m SN2 teleskoobi komplekt Normal krae 3366051-N ja lukustita restluugiga 3366053-N


160-seeria 0,75m SN2 teleskoobi komplekt Normal krae 3366051-N ja lukustita restluugiga 3366053-N